Zpět Zpět na výpis nemovitostí

Pronájem bytu 3+kk 110 m², Na hřebenech II, Praha-Podolí

Na hřebenech II, Praha Zobrazit na mapě Zobrazit na mapě

Stav

Volný

Typ

3+kk

Obytná plocha

110 m2

Stav objektu

Velmi dobrý

Stavba

Cihlová

Vlastnictví

Osobní

41 999 Kč

Pohlídejte si cenu této nemovitosti Pohlídejte si cenu této nemovitosti

reo_watchdog_modal_header_title

bell

Pohlídejte si změny u této nemovitosti

Dáme vám vědět, ať už se změní cena nebo stav nemovitosti.

bell

O vaše data je u nás postaráno. Přečtěte si naše podmínky pro ochranu os. údajů.

Kalkulačka financování Kalkulačka financování

Spočítejte si, na kolik vás vyjde hypotéka

Spočítejte si, na kolik vás vyjde hypotéka

Spočítejte si, na kolik vás vyjde hypotéka

Nějaký zajímavý podnadpis

Více o této nemovitosti

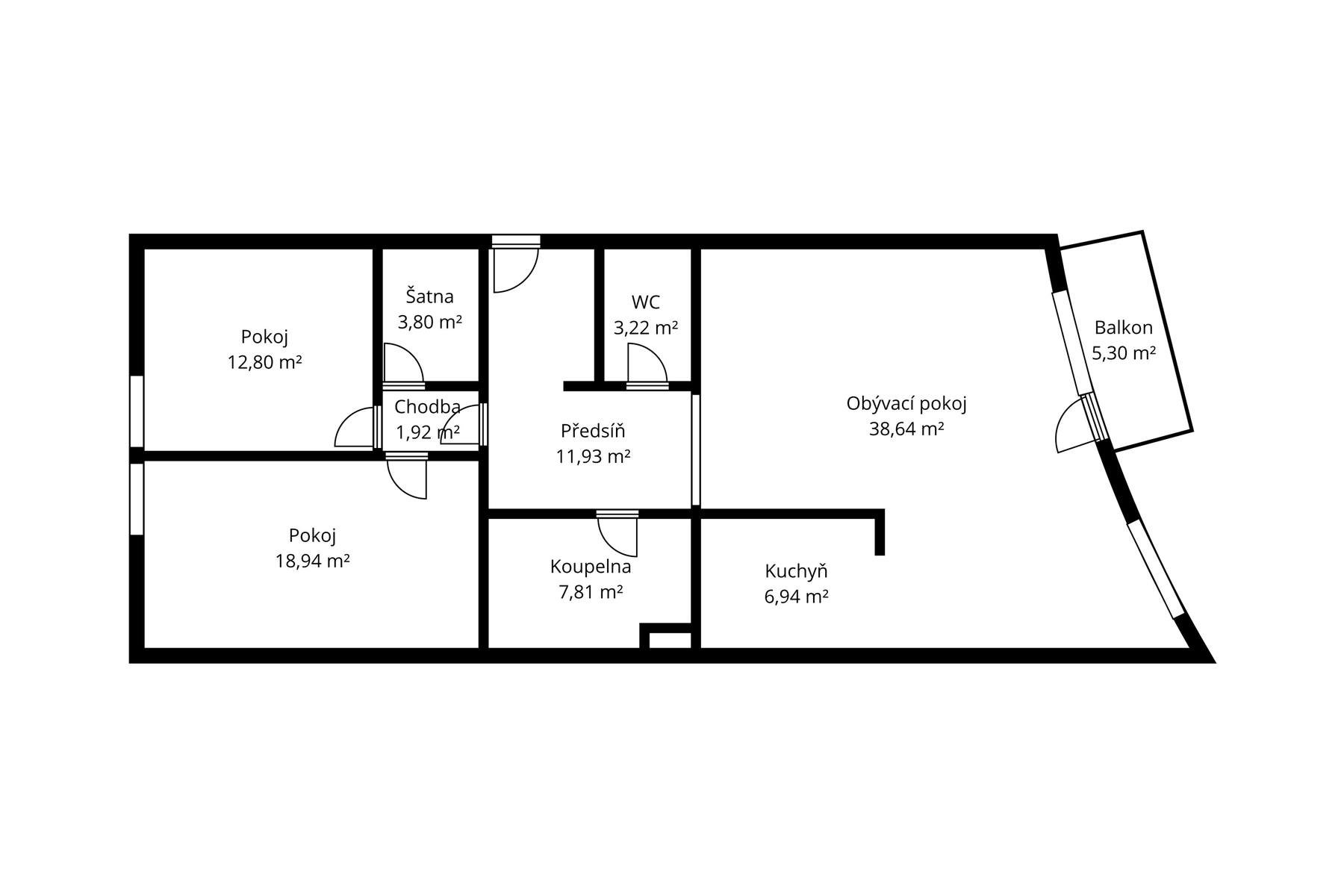
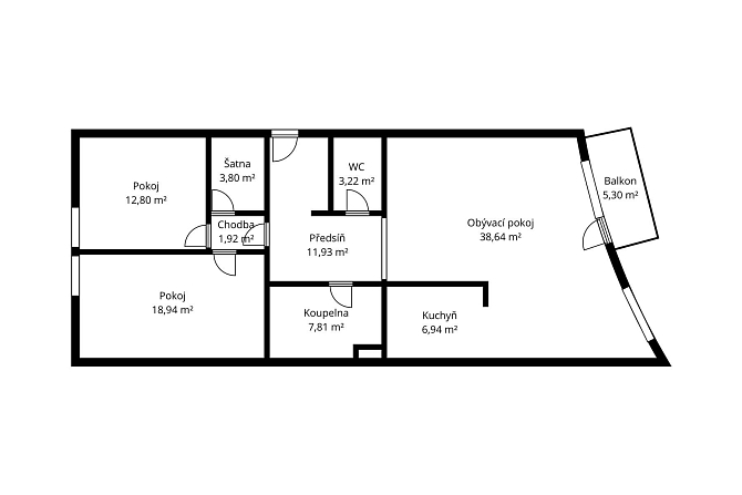
Exkluzivně nabízím k pronájmu prestižní a prostorný byt o dispozici 3+kk s balkonem a parkovacím stáním, ze kterého je krásný výhled na Pražský hrad a panorama města. Byt se nachází ve 3. nadzemním podlaží moderního bytového domu s ostrahou 24/7, v ulici Na Hřebenech II, Praha – Podolí.

Některé adresy v Praze mají jméno, které v sobě nese klid, prestiž i místo, kam se rádi vracíte. Na Hřebenech II na Kavčích Horách je přesně taková. A právě tady na vás čeká světlý a nadstandardně řešený byt s výborným zázemím.

Dispozice a vybavení

Celková plocha bytu činí 110 m²:

velkorysý obývací pokoj (38,64 m²) s jídelní částí a kompletně vybavenou kuchyní

dvě ložnice (12,80 m² a 18,94 m²), ideální jako ložnice a pracovna/dětský pokoj

hlavní koupelna se sprchou, vanou, dvěma umyvadly a bidetem

druhá samostatná toaleta s umyvadlem

samostatná šatna s praktickým úložným systémem

vstupní předsíň a chodba s dostatkem místa

balkon s výhledem do zeleně a na Prahu

K bytu náleží vlastní parkovací stání v garáži domu (v ceně).

Dům a okolí

Dům je moderní, s výtahem, bezpečnostním zázemím a příjemným vnitroblokem se vzrostlou zelení. Součástí je ostraha, kamerový systém, oplocený pozemek s okrasnou zelení přístupný pouze rezidentům a dálkově ovládaný vjezd do garáže.

Lokalita

Rezidenční oblast Na Hřebenech II patří k nejoblíbenějším částem Prahy 4 – blízko centra, ale v naprostém klidu. V okolí jsou ambasády, vilová zástavba, parky i plná občanská vybavenost. V pěší vzdálenosti je zastávka MHD i veškeré služby, na metro se dostanete za pár minut.

Bezprostřední okolí nabízí mimořádné možnosti sportu a odpočinku – plavecký stadion Podolí, Sokol Vyšehrad, Yacht klub CERE, Žluté lázně s přístupem k Vltavě, saunami a beach zónami, tenisové kurty, cyklostezky i běžecké trasy. Milovníci klidu ocení zeleň, atmosféru a bezpečí této adresy – přitom jste jen pár minut od centra města.

Pro více informací mě neváhejte kdykoliv kontaktovat. Prohlídka možná i v cizím jazyce. Ráda vás bytem osobně provedu.

For more information, feel free to contact me at any time. Viewings are also available in a foreign language. I’ll be happy to show you the apartment in person. Pro komunikaci uvádějte evidenční číslo zakázky N112834.

Lokalita

Obec

Ulice

Na hřebenech II

Informace o nemovitosti

Stav

Volný

Typ smlouvy

Pronájem

Typ nemovitosti

Byt

box-unit

Obytná plocha

110 m2

Další informace

Typ

3+kk

Stav objektu

Velmi dobrý

Stavba

Cihlová

Vlastnictví

Osobní

Energetická náročnost budovy

G - Mimořádně nehospodárná

Balkón

Ano

Garáž

Ano

Navigovat k nemovitosti Navigovat k nemovitosti

Máte zájem o tuto nemovitost?

Kontaktujte mě a domluvme se na prohlídce

Dejte nám vědět, s čím vám můžeme pomoct

Osobně s vámi projdeme každý detail

Preferovaný den prohlídky

Preferovaný čas prohlídky

Nejpozději do 24 hodin se ozveme nazpátek.

O vaše data je u nás postaráno. Přečtěte si naše podmínky pro ochranu os. údajů.

Děkujeme za váš zájem

Vaše informace jsme přijali a brzy se vám ozveme.

Váš požadavek byl úspěšně odeslán

Dejte nám vědět, s čím vám můžeme pomoct

Osobně s vámi projdeme každý detail

Podobné nemovitosti v naší nabídce

Mohlo by vás také zaujmout

Prodáno
Detail nemovitosti

Prodej bytu 3+1 100 m², Za Novákovou zahradou, Praha-Satalice

Ulice Za Novákovou zahradou, Praha

8 490 000 Kč
Prodáno
Detail nemovitosti

Prodej bytu 3+kk 77 m², Praha

Ulice Praha

8 490 000 Kč
Prodáno
Detail nemovitosti
Prodáno
Detail nemovitosti
Prodáno
Detail nemovitosti

Prodej bytu 2+1 64 m², Černokostelecká, Praha-Strašnice

Ulice Černokostelecká, Praha

8 590 000 Kč
Volný
Detail nemovitosti
Prodáno
Detail nemovitosti

Prodej bytu 3+kk 64 m², Černokostelecká, Praha-Strašnice

Ulice Černokostelecká, Praha

8 590 000 Kč
Volný
Detail nemovitosti

Prodej bytu 3+1 74 m², V jezírkách, Praha-Chodov

Ulice V jezírkách, Praha

6 990 000 Kč
Prodáno
Detail nemovitosti

Prodej bytu 1+kk 25 m², K Vystrkovu, Praha-Modřany

Ulice K Vystrkovu, Praha

4 590 000 Kč